
Grosor pared 44 mm.
Tejado simple tela asfáltica
34.385,00
Paredes exteriores 153 mm. / interiores 44 mm.
Tejado aislado tela asfáltica
41.285,00
No son tan sólo para un hogar cualquiera, son para una vida distinta, deben elegirse realmente porque creemos los beneficios que tienen estas construcciones, sus virtudes, gusto por este material y para poder vivir un entorno natural.
Tenemos casas de madera especiales para satisfacer sus necesidades o gustos pudiendo asi lograr un estilo distinto para su vida cotidiana, donde disfrutar una forma natural de los beneficios que dan estas casas prefabricadas en contacto con la naturaleza o su entorno.
Los nuevos procesos para fabricación, junto a modernas tecnologías constructivas existentes hoy, nos permiten que todos nuestros modelos logren una energética eficiente, permitiendo para su construcción, poder entregar llave en mano cumpliendo los tiempos establecidos. Todas las ofertas que tenemos son sostenibles como ecológicas.
Ofrecemos a todos los clientes una preferente atención sobre ampliaciones, reformas y garajes, como adicional al modelo seleccionado en el modelo que elijan, también en sus exteriores como pérgolas, porches, cenadores, todo aquello que se necesite o tenga en mente para complementar y cumplir sus sueños.
Por este motivo, todos nuestros clientes han logrado obtener sus hogares deseados a un precio reducido, obteniendo su ilusión convertida en realidad, menor plazo en su entrega y ahorro para mantener sus viviendas. Nuestras modelos presentan todas estas ventajas pese a nuestras ofertas o bajo precio.
Las ventajas sobre las construcciones de hormigón, lo más importante, sus ofertas accesibles a todo bolsillo, limpieza al ensamblarlas y la rapidez que tiene su montaje. Además siendo un material sumamente natural y ecológico que combina belleza, inspiración, rendimiento y ventajas al medio ambiente, respetándolo en todas su formas.
Podrá encontrar en esta página web ofertas en casas de madera baratas y a precios increíbles, donde tenemos una gran variedad en precios y metros cuadrados, pudiendo elegir casas prefabricadas menores a 70 metros cuadrados, entre 70 metros cuadrados y 110 metros cuadrados y mayores a 110 metros cuadrados.
Este tipo de casas prefabricadas son nuestra especialidad, llevamos construyendo y diseñando a medida mucho tiempo logrando satisfacción plena en nuestros clientes. Somos líderes con más casas construidas en el territorio español y portugués, con mucha experiencia adquirida para resolver las dificultades que puedan presentarse en su construcción.
Vea nuestras casas de madera, detalles, espesores y precios especiales para todos los adicionales, puede también encontrar nuestras viviendas prefabricadas separadas por superficie si lo desea o si esta buscando alguna característica especial. También podrá encontrar aquí ofertas increíbles o a los mejores precios. Las dudas que tenga sobre estas casas de madera en oferta serán solucionadas por nosotros contestando a todas sus preguntas o viendo nuestras exposiciones que tienemos a disposición.
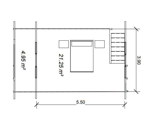
Conozca algunas construcciones realizadas de casas de madera moderna que hemos o estamos construyendo completamente a gusto y medida para nuestros clientes, podrán ver algunos estilos y distintos tamaños. Encontrarán junto a las características, en cada modelo, espesores, fotos exteriores y también del interior, como así también planos para ver su distribución y comodidades.
Tenemos los mejores precios en casas de madera hasta 70 m2., como en casetas de jardín, trasteros y garajes que pueda encontrar en el mercado, ahora tenemos nuevas delegaciones en donde vendemos y exponemos distintos modelos nuevos, encontrará allí algunas casas de madera prefabricadas mas vendidas o que nosotros le asesoraremos y le recomendaremos para la zona donde las quiere instalarla.